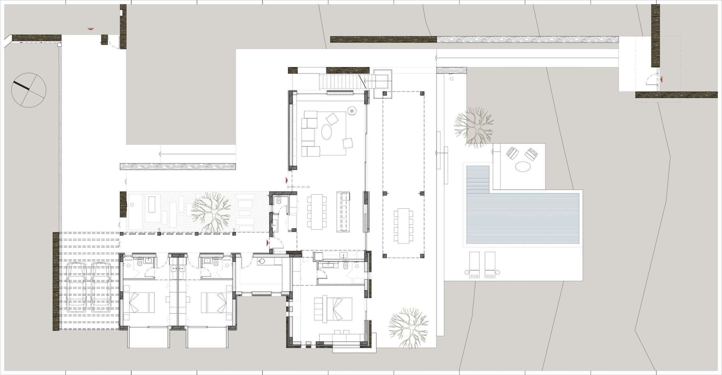
In Methoni, at the quiet site of Ovóros, a single‑storey house of 205 m² settles gently into a 5,700 m² olive‑dotted slope, where land flows from mountain to sea and the flora and view quietly dictated the design.
Unfolding in an L, with the entrance placed toward the mountain. One wing holds the daily life and a full bedroom within an elongated volume, the other stands autonomous with storage and two guest rooms, linked by a covered arcade — a corridor of shade and movement.
A ramp acts as both a conceptual and functional link to the sea; the stone wall that accompanies it runs with the ramp to the house level and continues to the rear, defining the space and the route.
An independent exposed‑concrete terrace, set at the same plane as the house, set at the same level as the building, shelters the living space from the hot sun and rain. From this level, a stair leads to the accessible roof‑terrace — a belvedere with panoramic views over the field and the sea; the planting on the western side of the roof reinforces the sense of continuity with the surroundings.
Stone masonry and selective cladding in local stone, lime renders in earthy tones, and the use of exposed concrete on the roofs and on the low bathroom volume integrate the house into the material palette of the place. Natural wood in numerous constructions and terrazzo floors reinforce the sense of a dwelling rooted in the earth.
The olive grove penetrates the composition: the regularity of the tree layout echoes in the columns of the arcade and the façade of the covered terrace, while the elongated ramp and its accompanying stone wall orient the gaze toward the sea. They create a harmonious relationship between order and the widening of the landscape.
