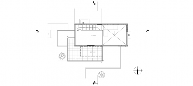
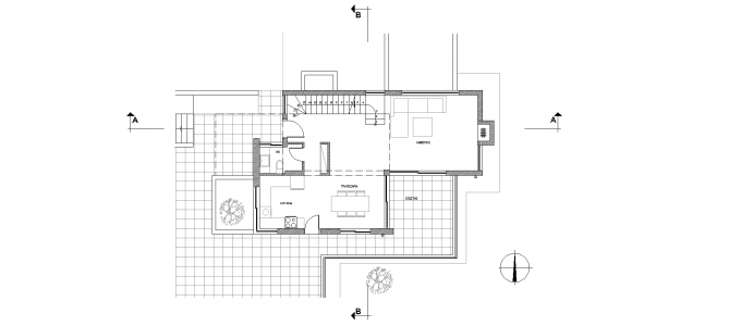
The residence is placed in the center of a narrow, open throughout plot with inclining ground.
It consists of two plain geometric volumes, the one at a floor higher than the other. The lowest is defined by a concrete wall in gamma (Γ) shape.
The entrance is placed on the intermediate level, that contains the areas intended for family life and open to the balcony, a space protected from the strong wind of the site.
From this level one can go down the stairs to find the bedrooms or go up to the office on the loft.
The materials are concrete, metal and wood.
photos: Nikos Alexopoulos
in co-working with +3 architects
