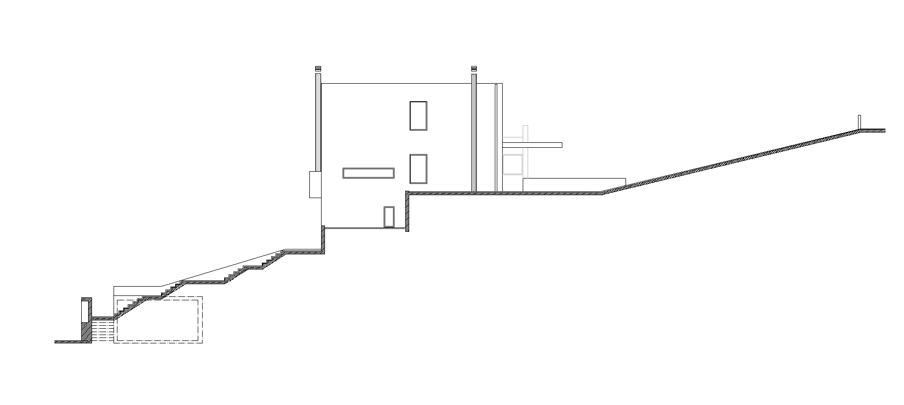
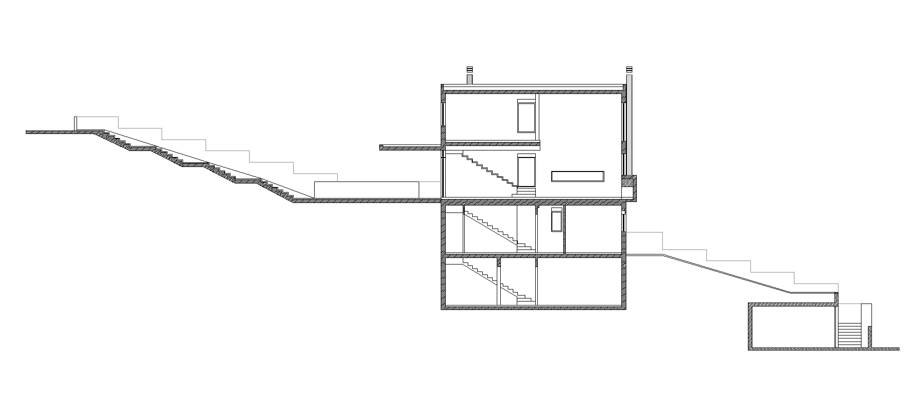
Η κατοικία τοποθετείται κεντροβαρικά ενός στενόμακρου, διαμπερούς οικοπέδου με ιδιαίτερα επικλινές έδαφος.
Αποτελείται από δύο απλούς γεωμετρικούς όγκους ο ένας κατά έναν όροφο ψηλότερος από τον άλλον. Ο χαμηλότερος εξ αυτών ορίζεται από έναν τοίχο από εμφανές μπετόν σε σχήμα Γ.
Η είσοδος γίνεται στη μεσαία στάθμη, όπου βρίσκονται οι χώροι διημέρευσης και ο προστατευμένος εξώστης.
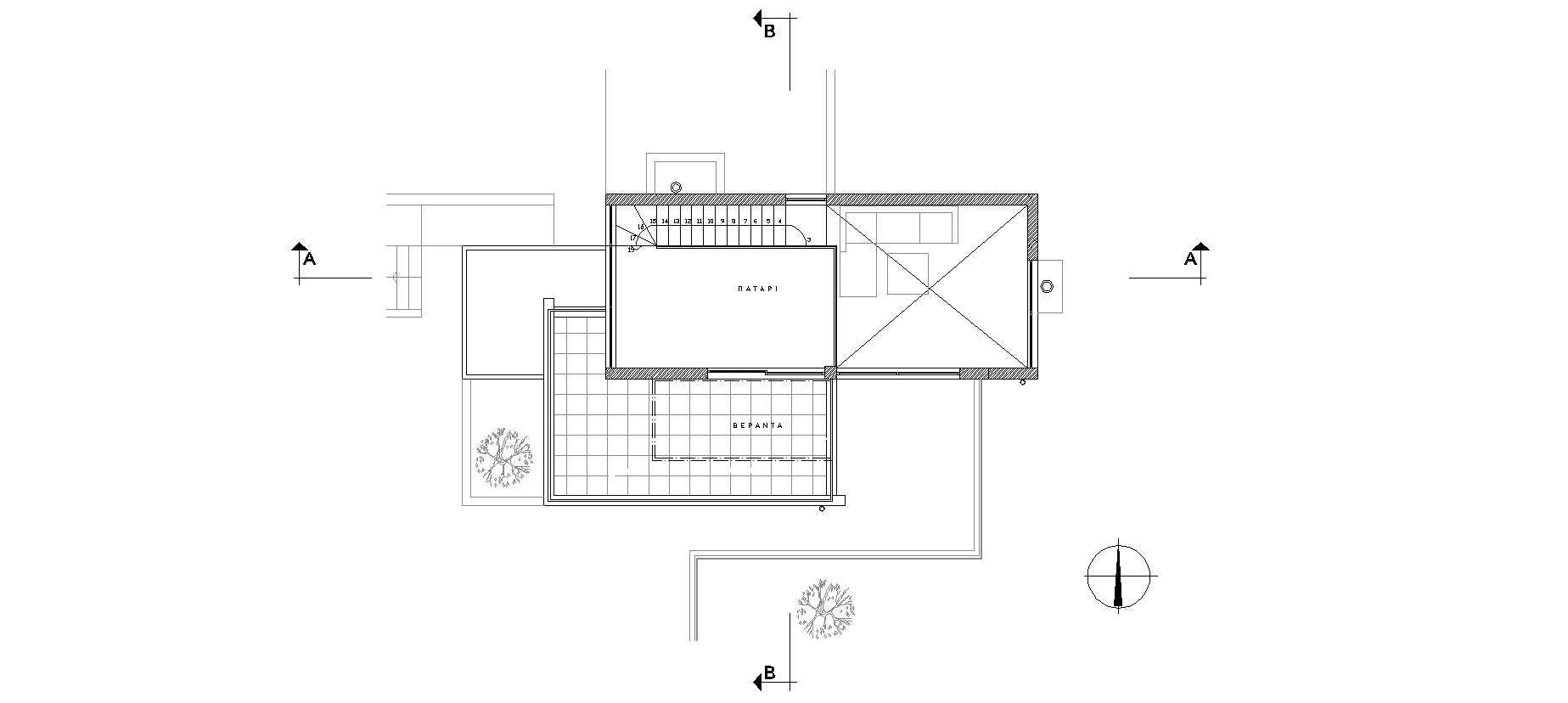
Από το επίπεδο αυτό η κίνηση γίνεται είτε προς την κάτω στάθμη, όπου βρίσκονται τα υπνοδωμάτια είτε προς τα γραφείο στο πατάρι.
Τα υλικά είναι σκυρόδεμα, ξύλο και μέταλλο.
φωτογραφίες: Νίκος Αλεξόπουλος
Σε συνεργασία με τους +3 architects
