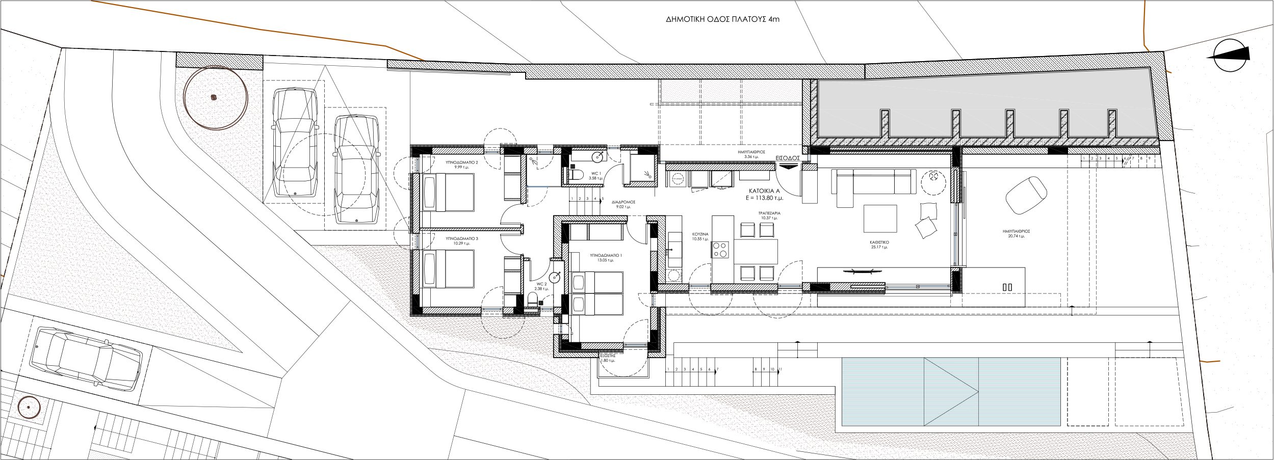
Το θέμα βρίσκεται σε ένα οικόπεδο με αγροτικό χαρακτήρα και έκταση 2600τμ,, στα όρια του οικισμού του Άνω Γαυρίου, στην Άνδρο.
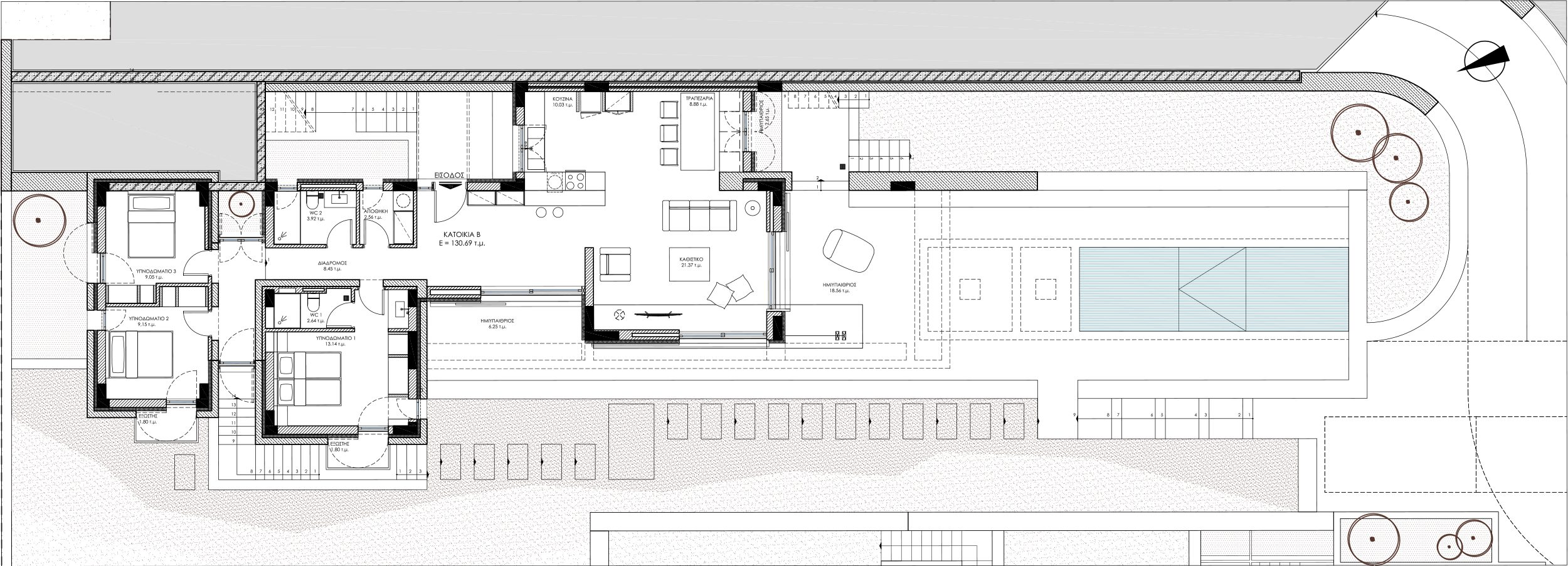
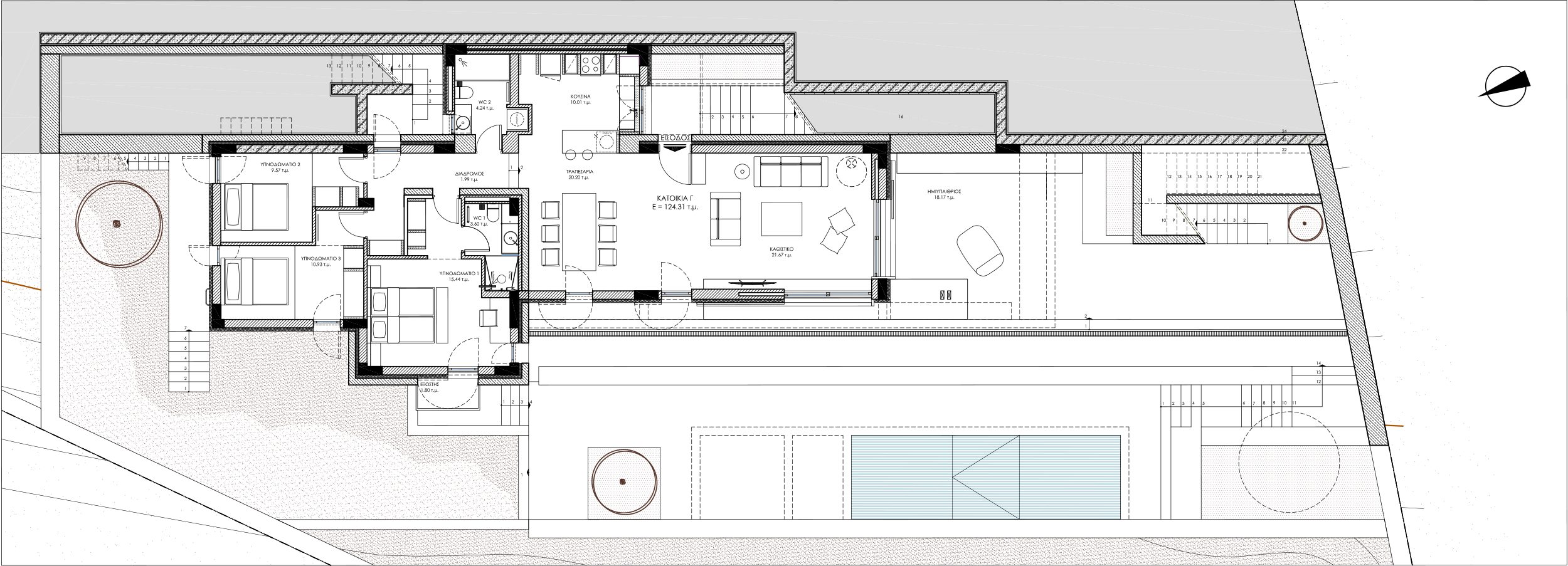
Η έντονη κλίση του εδάφους με διαμορφωμένες παραβολές, το ρέμα στα όρια του οικοπέδου με την πλούσια βλάστηση από ελιές και πλατάνια και η απρόσκοπτη θέα και εγγύτητα προς τη θάλασσα και το λιμάνι του Γαυρίου καθόρισαν σημαντικά το σχεδιασμό των τριών κατοικιών 114,40 m2, 131,29 m2, 124,92 m2 αντίστοιχα.
Αρχιτεκτονικά οι κατοικίες αποτελούν παραλλαγές πάνω σε μία βασική ιδέα, μια χωρική αποτύπωση της γήινης πολικότητας του ανθρώπινου σώματος.
Οι χώροι ύπνου αποτελούν το πλέον χθόνιο κομμάτι της σύνθεσης τόσο λόγω της πέτρινης επένδυσης όσο και της τοποθέτησης χαμηλότερα και πιο κοντά στο έδαφος. Ως εκ τούτου ανταποκρίνονται στον ύπνο ως γήινη απόσυρση. Σε αντιδιαστολή οι χώροι διημέρευσης τοποθετούνται ψηλότερα και είναι πιο διάτρητοι στην θέα, κάτι που ανταποκρίνεται σε μια αέρινη σωματική δραστηριότητα κατά την διάρκεια της ημέρας.
Οι χώροι διημέρευσης δημιουργούνται ως επιμήκεις σοβατισμένοι όγκοι σε αντιδιαστολή με αυτούς τους πέτρινους κύβους. Ξεκινούν σε επαφή με τους πέτρινους όγκους και καταλήγουν σε μια προέκταση της πλάκας οροφής για την δημιουργία μιας ημιυπαίθριας επέκτασης του καθιστικού.
Οι χώροι διανυκτέρευσης τοποθετούνται σε κυβόσχημους όγκους επενδεδυμένους με πέτρα και ανοίγματα μικρών διαστάσεων ούτως ώστε να ακολουθούν την μορφολογία των πετρόκτιστων κτισμάτων της παραδοσιακής αρχιτεκτονικής του τόπου.
Τα δώματα των πέτρινων όγκων είναι βατά (μερικά φυτεμένα με αγρωστώδη φυτά) και η πρόσβαση σε αυτά γίνεται μέσω μικρών βοηθητικών κλιμάκων με βαθμίδες προεξέχουσες από τους πέτρινους τοίχους που διαμορφώνουν τον περιβάλλοντα χώρο.
Η επιμήκεις πισίνες κάθε κατοικίας παραπέμπουν σε στέρνες, χαρακτηριστικό στοιχείο στην αρχιτεκτονική του τόπου.
Συνολικά οι αρχιτεκτονικές επιλογές ακολούθησαν τις ανάγκες μιας σύγχρονης, εξοχικής κατοικίας λαμβάνοντας υπ’ όψη την παραδοσιακή αρχιτεκτονική του νησιού και τη μορφολογία του εδάφους.
