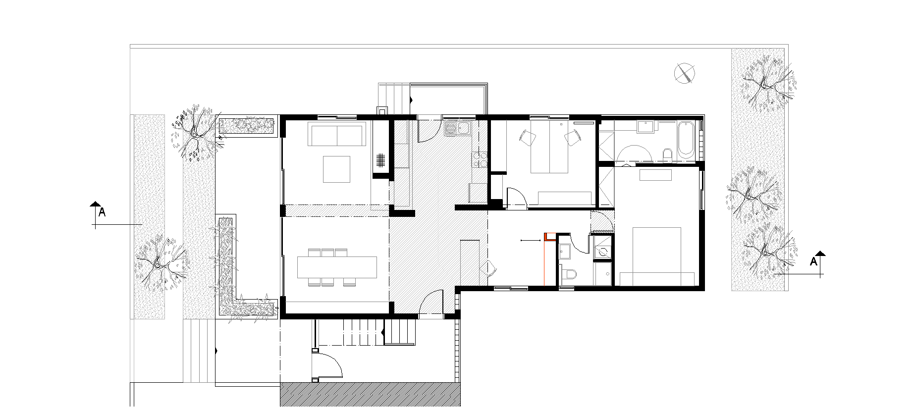
Το αντικείμενο του σχεδιασμού ήταν η πλήρης ανακατασκευή ενός ισογείου διαμερίσματος με στόχο να μετατραπεί σε χώρο εργασίας και κατοικίας.
Μετά την καθαίρεση πολλών εσωτερικών χωρισμάτων δημιουργήθηκε ένας ενιαίος και ένας κλειστός χώρος, που λειτουργούν και ως προς τις δύο χρήσεις.
Η διάνοιξη της μπροστινής όψης έγινε με σκοπό τη βελτίωση του φυσικού φωτισμού και την άμεση εκτόνωση του καθιστικού χώρου στην υπερυψωμένη σε σχέση με τον κήπο βεράντα. Η φύτευση σ’ αυτήν αποτελεί το όριο της κατοικίας, διευρύνει την αίσθηση του χώρου και βοηθά σημαντικά στην ιδιωτικότητά του.
Τα υλικά, που χρησιμοποιήθηκαν είναι το μέταλλο, το ξύλο στα έπιπλα και τα δάπεδα των ιδιωτικών χώρων καθώς οι τσιμεντοκονίες στα δάπεδα των λοιπών χώρων.
φωτογραφίες: Νίκος Αλεξόπουλος
